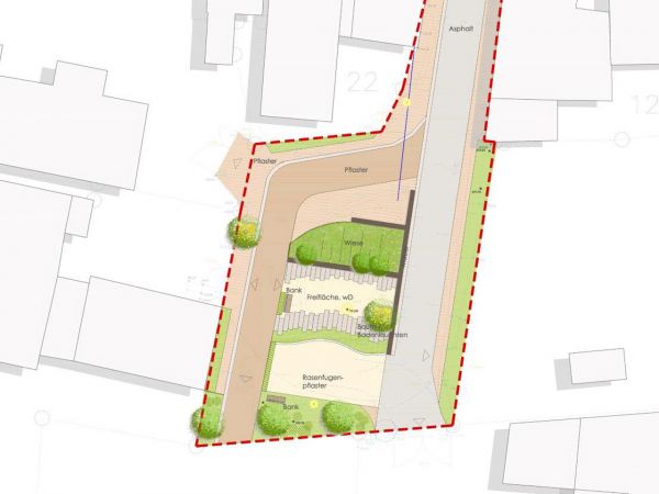
Projekt:
Neugestaltung Umgriff Abersfelder Straße

Bauherr:
Teilnehmergemeinschaft Theres

Standort:
Theres, OT Buch

 

  • architektur + ingenieurbüro perleth  
  • kornmarkt 17   97421 schweinfurt  
  • t: 09721 675191-00   info@architekt-perleth.de
  • Anfahrt
  • facebook
  • instagram
  • Logo Phase Nachhaltigkeit DE
  • instagram